Via Maffoni 1/A - Chiari, BS
Italia
25032
Lo studio è specializzato nella progettazione di nuove costruzioni, in particolar modo ville residenziali concepite dalla reinterpretazione del significato di Casa in chiave contemporanea combinata alla minuziosa analisi delle necessità del cliente. Ecco alcuni dei nostri progetti!


















Ogni nostro progetto di nuova realizzazione nasce da una “FASE 1 PRA”; si tratta di un pacchetto tecnico di competenze professionali atte all’accompagnamento dei nostri clienti alla definizione di una preliminare ma consapevole idea di progetto.
- Inquadramento dell’immobile a livello territoriale ed urbanistico;
- Analisi del contesto immediato con individuazione dei punti di forza e debolezza;
- Analisi specifica del lotto con individuazione delle prime linee guida progettuali;
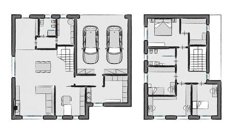
- Sviluppo layout funzionale con studio della possibile posizione dell’immobile e studio della possibile distribuzione interna degli spazi;
- Studio preliminare distributivo e concept volumetrico di diverse versioni progettuali;
- Progetto architettonico preliminare dell’immobile con approfondimento del sistema distributivo interno di piano terra e piano primo;
- Sviluppo di n° 2 o 3 versioni differenti a livello distributivo e volumetrico;
- Realizzazione di n°2 o 3 modelli architettonici volumetrici con riferimento a ciascuna versione di progetto architettonico;
- Stima parametrica di massima del probabile budget economico necessario;
- Definizione della soluzione architettonica e raccolta delle annotazioni per definizione del progetto preliminare PRA;
- Revisioni e definizioni soluzione a livello distributivo e volumetrico;
All’espletamento di questa prima fase il cliente può liberamente decidere se procedere all’incarico completo allo studio. In tal caso la spesa sostenuta per la “FASE 1 PRA” verrà scontata dal preventivo complessivo